





















CONCURSO DE ANTEPROYECTOS PARA EL EDIFICIO SEDE ADMINISTRATIVA DE ACA SALUD
Casa Rosario.
PROYECTO: 2015
UBICACIÓN: Rosario, Santa fe, Argentina
AUTORES DEL PROYECTO: ARQ. ALEJANDRO BELTRAMONE, ARQ. MARIANO COSTA, ARQ. GABRIEL MAZZAROLO
COLABORADORES: Eugenio Tenaglia, Cristian Ragone, Florencia Brignoli, Lisandro Martín Lopez
Memoria descriptiva
El anteproyecto para la nueva sede de ACA SALUD se basó en refuncionalizar, remodelar y ampliar el edifico existente, anexando nuevas superficies de uso en el terreno adyacente mediante una astuta interpretación del programa en relación a sus propias necesidades y a su entorno urbano, clasificando claramente los accesos y circulaciones; consolidando la imagen a la importancia institucional del mismo a través la expresión arquitectónica de sus fachadas, asegurando la sustentabilidad en el habitar por el desarrollo de una adecuada producción edilicia que a su vez garantice racionalidad en la construcción, y contemplando una precisal etapabilidad a través de sucesivas intervenciones de construcción; pero con una imagen nueva, única y acabada desde su inicio acorde al carácter representativo pretendido por ACA SALUD.
Programa
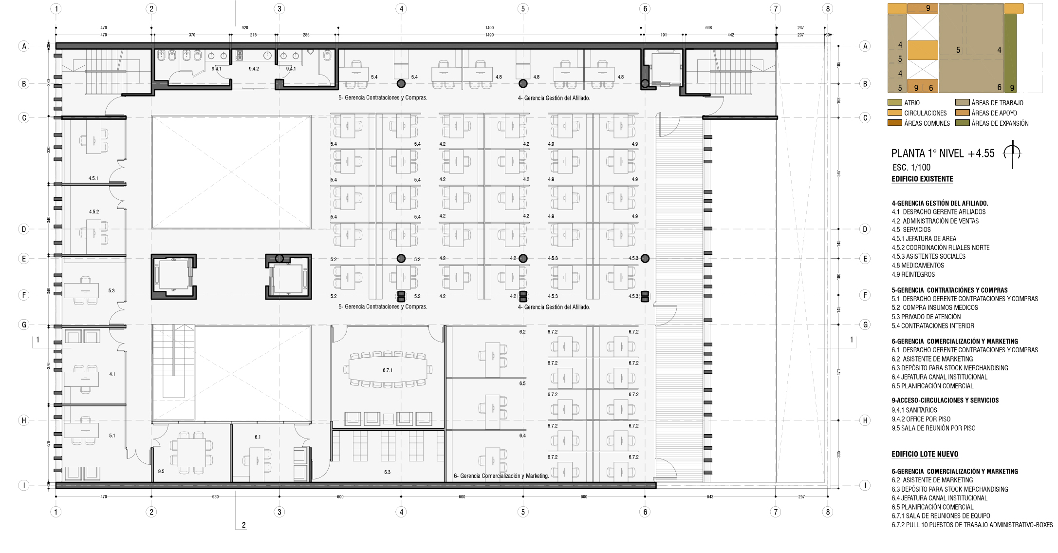
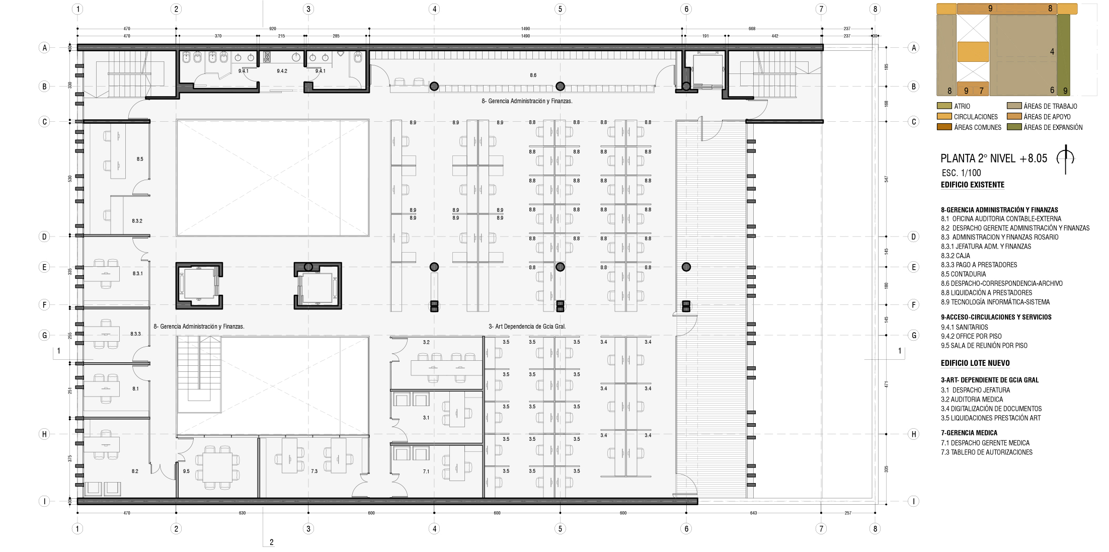
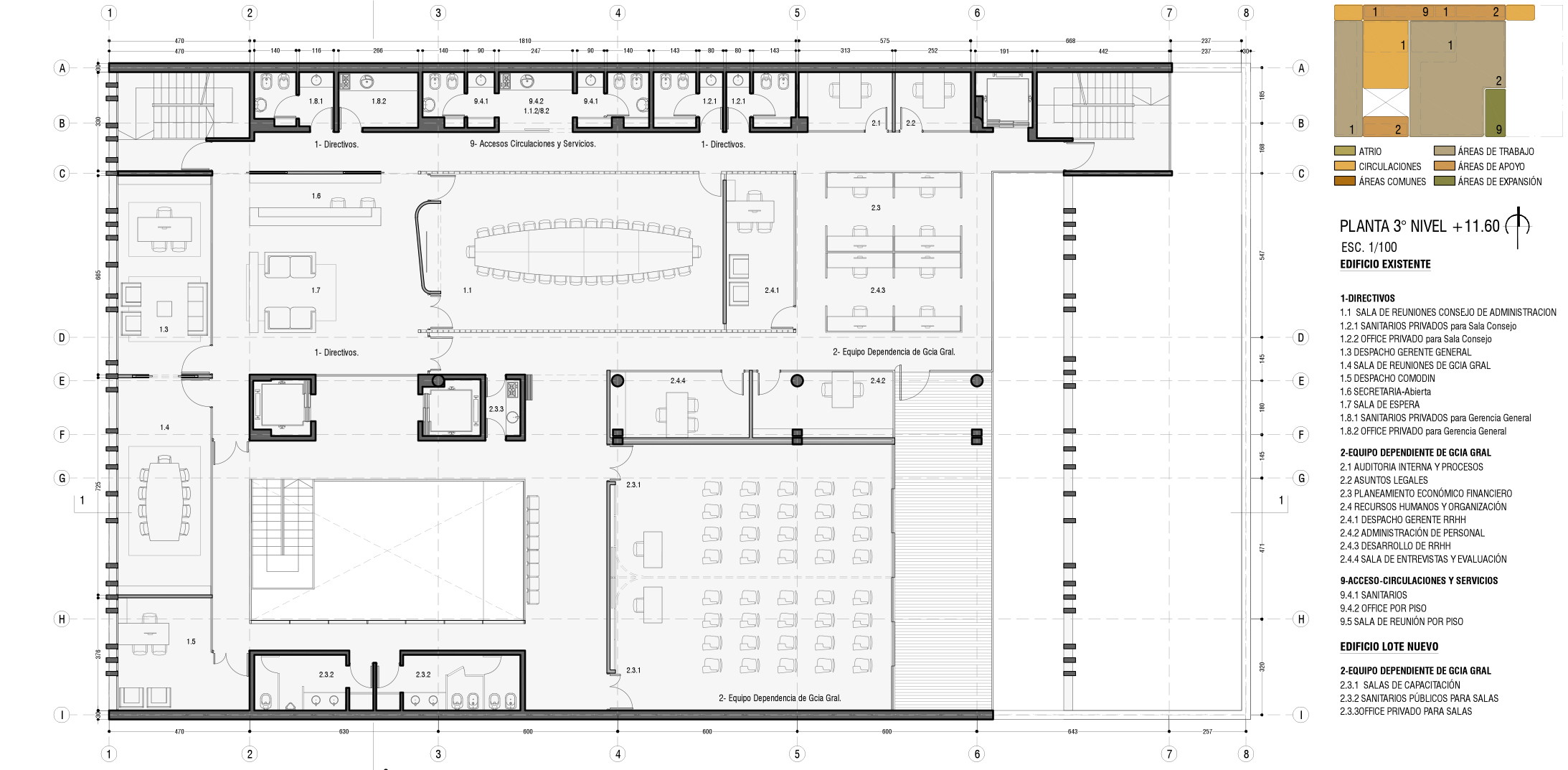
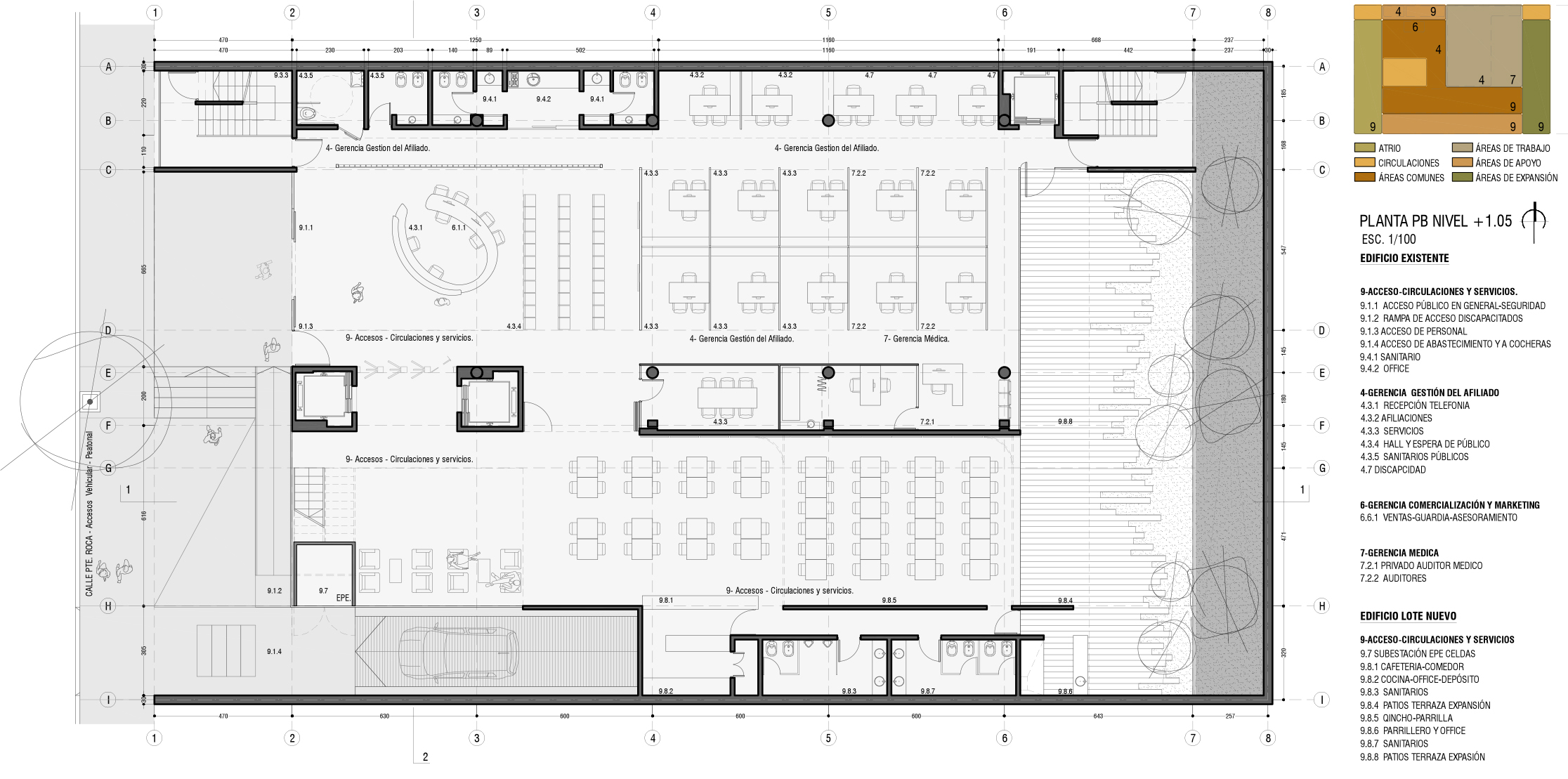
El uso intensivo del edificio existente, remodelado y ampliado; la clara clasificación de funciones separando la más privadas de las generales del personal; y la concentración de los sectores u oficinas sugeridas por la promotora en el terreno lindero fueron las premisas fundamentales para la organización del programa de necesidades.
Con el completamiento del retiro de línea de edificación se consiguió alojar, con criterio celular y frente a la calle Pte. Roca, las oficinas de gerentes, directivos y salas de reuniones; mientras que, aplicando el recurso de planta libre se logró, con alto grado de flexibilidad, cumplir con la disposición de los puestos de trabajos correspondientes a las áreas abiertas de cada gerencia; y relacionarlas con un patio del total del contrafrente disponible y expansiones que se brindan al mismo. Se asegura así la habitabilidad en el interior con adecuada iluminación natural y ventilación cruzada.
En tanto, la independencia de estos dos sectores no atenta contra la idea de conjunto gracias al espacio central de múltiples alturas que los articula con una marcada continuidad espacial en horizontal y vertical, favorecido por la concentración de las áreas de servicios (baños y office) recostadas en las medianeras como apoyos laterales a las áreas exclusivas de trabajo.
Expresión arquitectónica
Con la premisa de generar una imagen institucional nueva, única y acabada del edificio desde el inicio acorde al carácter representativo pretendido por ACA SALUD, se optó por desarrollar una fachada que no sólo abarque todo el frente disponible sobre calle Pte. Roca, sino que, también alcance la máxima altura de 23 metros permitida por ordenanza.
Mediante la aplicación de un programa paramétrico se diseñó una pantalla con una grilla de hormigón armado que define básicamente la imagen del edificio como un todo y anula la interpretación disociada de frente y contrafrente. Condición que se acentúa al mantener el mismo encuentro con el suelo en ambas orientaciones este y oeste: la pantalla se interrumpe y el vacío establece la relación interior-exterior.
El quiebre en la fachada acusa la etapabilidad articulando la masa edificada del crecimiento planificado y origina una terraza jardín como expansión de los próximos pisos a construir.
La síntesis constructiva de la pantalla se contrapone a la multiplicidad de lecturas, producto de los desplazamientos del patrón conformando la grilla, con los que se recrea el juego variable de llenos y vacíos de las fachadas que define el paisaje urbano de Rosario.
La autonomía de la carpintería de cerramiento con relación a la pantalla autoportante colabora con esta adjetivación al combinar sombras y transparencias.