











EDIFICIO MONTEVIDEO 543
PROYECTO: 2008
EJECUCION: 2009/2013
SUPERFICIE CUBIERTA: 1501M2
UBICACIÓN: Montevideo 634, Rosario, Santa fe, Argentina
PROYECTO: ARQ. ALEJANDRO BELTRAMONE, ARQ. MARCELO PONZELLINI
COORDINADOR DEL PROYECTO: ARQ. MARIANO LEGUIZAMON
COLABORADORES: Sr. Luis Etchevarne, Srta. Daniela Falena, Srta. Julia Kerckhaert
Memoria descriptiva
…mirar el centro de manzana
Los centros de manzanas en el tejido consolidado de la ciudad de Rosario poseen el atractivo de descubrir el verde y gozar de la luz natural, sensaciones que no se repiten con la misma intensidad y constancia en el espacio de sus calles generalmente a causa de la alta densidad urbana sumado a la marcada opacidad de sus fachadas definidas por una línea de edificación devenida de la necesidad de subrayar una barrera entre la vereda y el interior del lote, más que por definirse como límite de pertenencia entre lo público y lo privado.
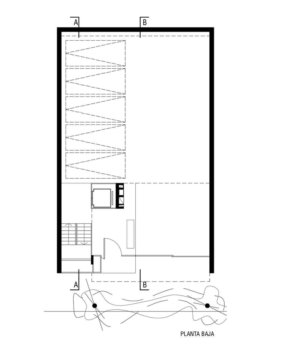
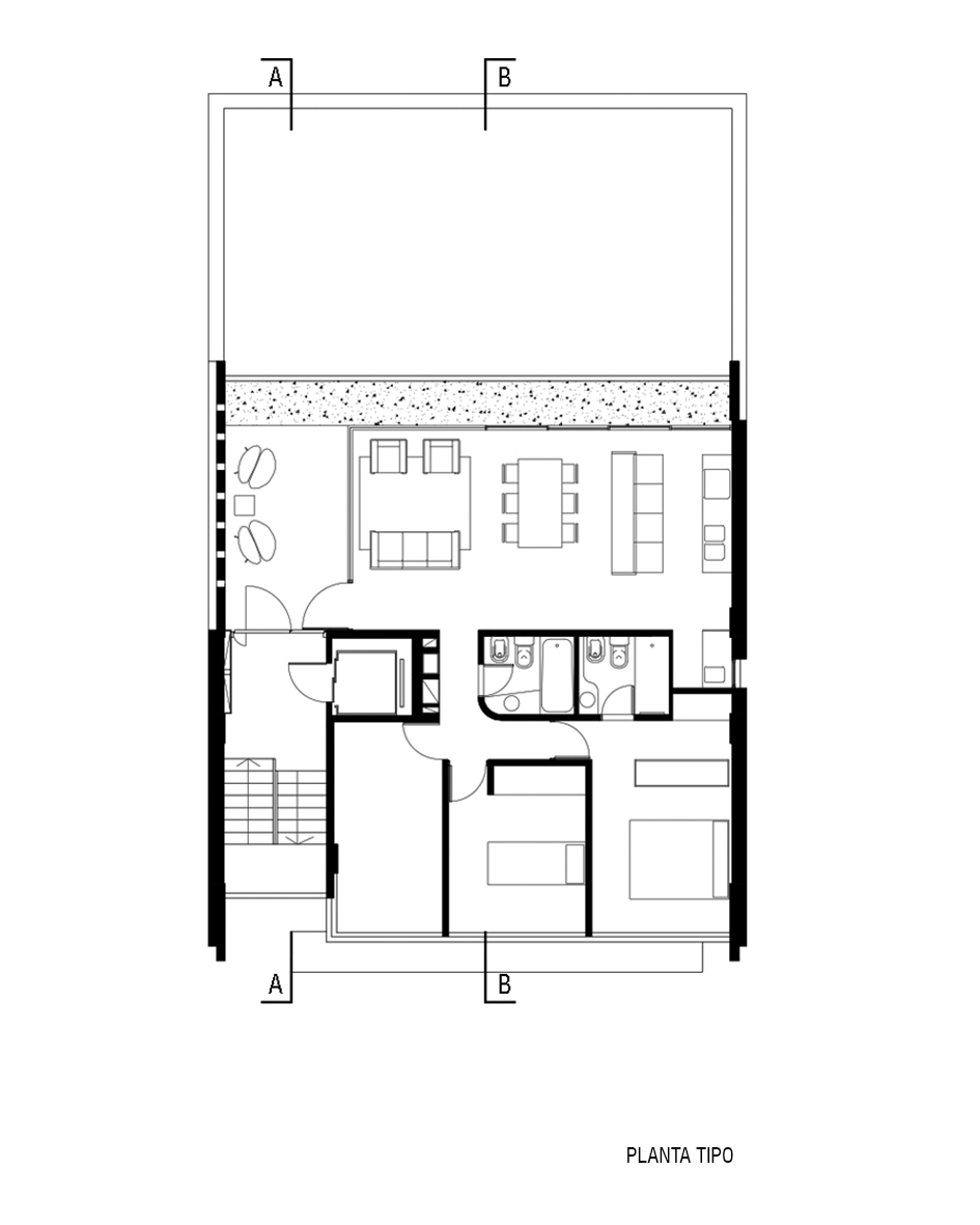
Ante este escenario, el proyecto en contacto con el suelo intenta revertir esta situación, e integrar la calle con el vacío de la manzana resolviendo el ingreso principal y las cocheras en un único espacio de doble altura, permeable a la luz y atravesable con la mirada, como preámbulo de lo que acontecerá en los pisos de los departamentos. En ellos, la lógica organizativa de la planta tradicional de propiedad horizontal se ha invertido, ubicando los dormitorios en el frente del edificio y orientando el sector con mayor uso diurno - estar, comedor y cocina- hacia el interior de la manzana que coincide con la mejor orientación: el norte.
El sistema de circulación no hace más que reforzar la intención de fusionar los dos frentes del edificio, generando una situación pasante entre la escalera del edificio con el palier y balcón- galería de cada unidad que a su vez es el acceso a cada departamento.
El hormigón armado resuelve la estructura y con su desnudez la expresión arquitectónica del proyecto. El ladrillo visto completa el cerramiento de la medianera libre, por consiguiente tratada como una tercera fachada urbana no solo por la atención en la elección de materiales nobles sino a la vez por la posibilidad de generar un filtro de luz perforando su piel con una grilla de agujeros.