



















VIVIENDA UNIFAMILIAR P463
PROYECTO: 2008
EJECUCION: 2008-2009
SUPERFICIE CUBIERTA: 510M2
UBICACIÓN: Av. Pellegrini 463, Rosario, Santa fe, Argentina
PROYECTO: ARQ. ALEJANDRO BELTRAMONE, ARQ. MARCELO PONZELLINI
COORDINADOR DEL PROYECTO: ARQ. MARIANO LEGUIZAMON
COLABORADORES: O. Colombini, Daniela Falena, Ana Prato
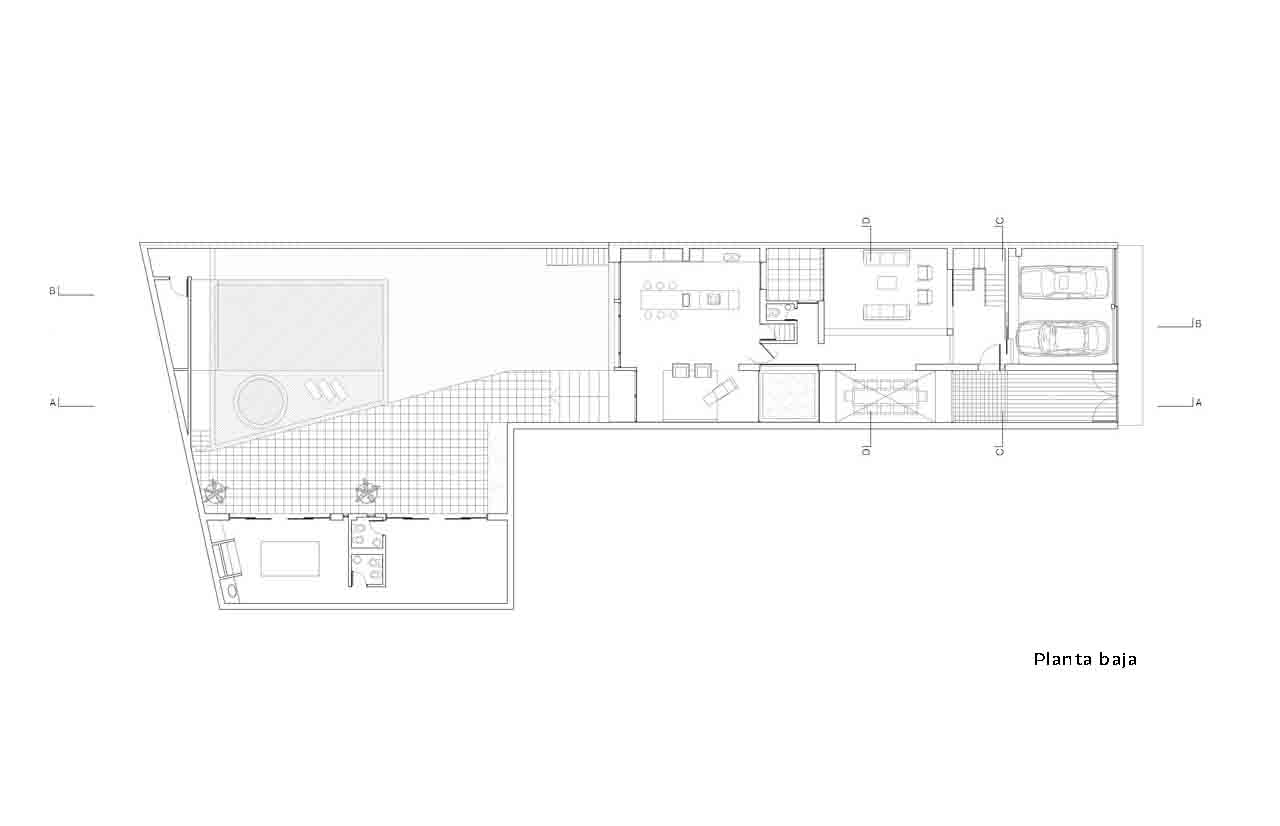
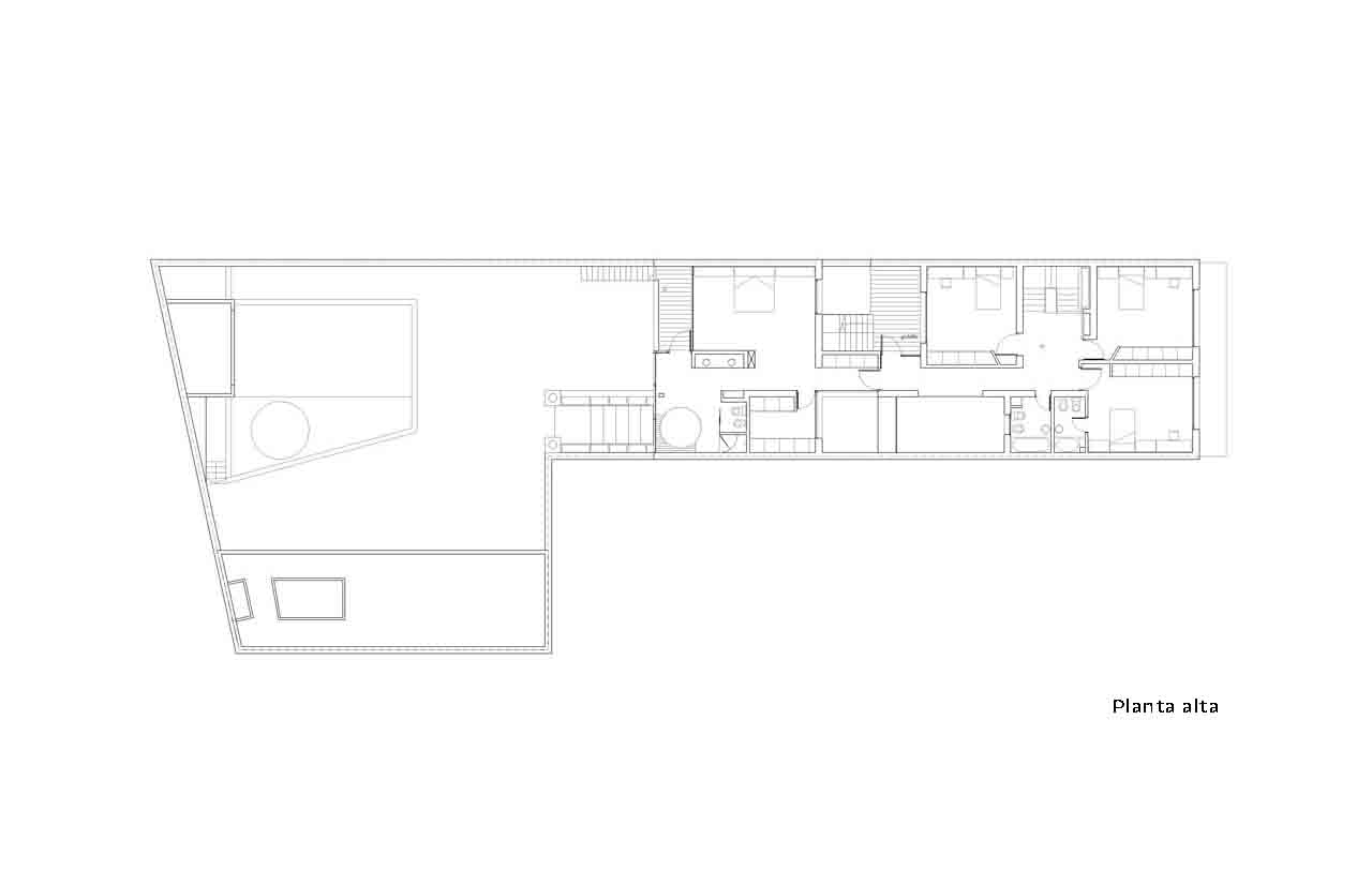
Memoria descriptiva
La intervención consistió en una reforma y ampliación de una vivienda y su pabellón anexo con dependencias de servicio, a la que hubo que incorporar un dormitorio en suite y tres cocheras.
El lote entre medianera y de ancho reducido condicionó la transformación casi total del estado original de la construcción para responder al nuevo programa. La ubicación de las cocheras al frente determinó una nueva fachada. La planta baja quedó unificada mediante una carpintería de acero inoxidable que otorga seguridad con relación a la calle pero a su vez iluminación a los espacios interiores por su diseño. El cerramiento con cortinas y paños fijos de aluminio en planta alta confiere mayor privacidad a los dormitorios que dan al frente. La azotea con vidrio translucido oculta los volúmenes emergentes de la terraza y otorga mayor escala a la fachada principal.
Para dar mayor flexibilidad de uso mediante continuidad espacial, correcta iluminación y ventilación en la planta baja se incorporó un espacio de doble altura destinado para comedor, vinculado a un patio de agua que se integró a la cocina con vistas al jardín. El otro patio se mantuvo en su estado seco como pulmón del área de estar.
El ensanche que presentaba el terreno en la parte posterior de la vivienda permitió modificar el perímetro de la piscina con el agregado de un solárium como parte del espejo de agua, más una cascada como remate visual de las perspectivas provenientes del contra frente de la vivienda. Una terraza como expansión del quincho integró el ala del pabellón auxiliar, también remodelado, con la pileta reforzando la idea de conjunto entre ambas partes.
En síntesis, dos patios de luz, uno seco y otro de agua, relacionaron los espacios interiores rompiendo con la caja compacta que los contenía; mientras un jardín con diferentes áreas vinculó el cuerpo principal de la vivienda con su pabellón auxiliar.
Colaboradores: ANA Prato, O. Colombi, D. Falena