






VIVIENDA UNIFAMILIAR K616
PROYECTO: 2007
EJECUCION: 2008-2010
SUPERFICIE CUBIERTA: 650M2
UBICACIÓN: Kentucky, Funes, Santa fe, Argentina
PROYECTO: ARQ. ALEJANDRO BELTRAMONE, ARQ. MARCELO PONZELLINI
COORDINADOR DEL PROYECTO: ARQ. MARIANO LEGUIZAMON
COLABORADORES: M. Tourn.
Memoria descriptiva
Pensar la arquitectura desde el vacío y desde el perímetro fue la condición de partida del proyecto como respuesta a las demandas del emplazamiento y las necesidades del programa para una vivienda unifamiliar dentro de un barrio cerrado del litoral argentino.
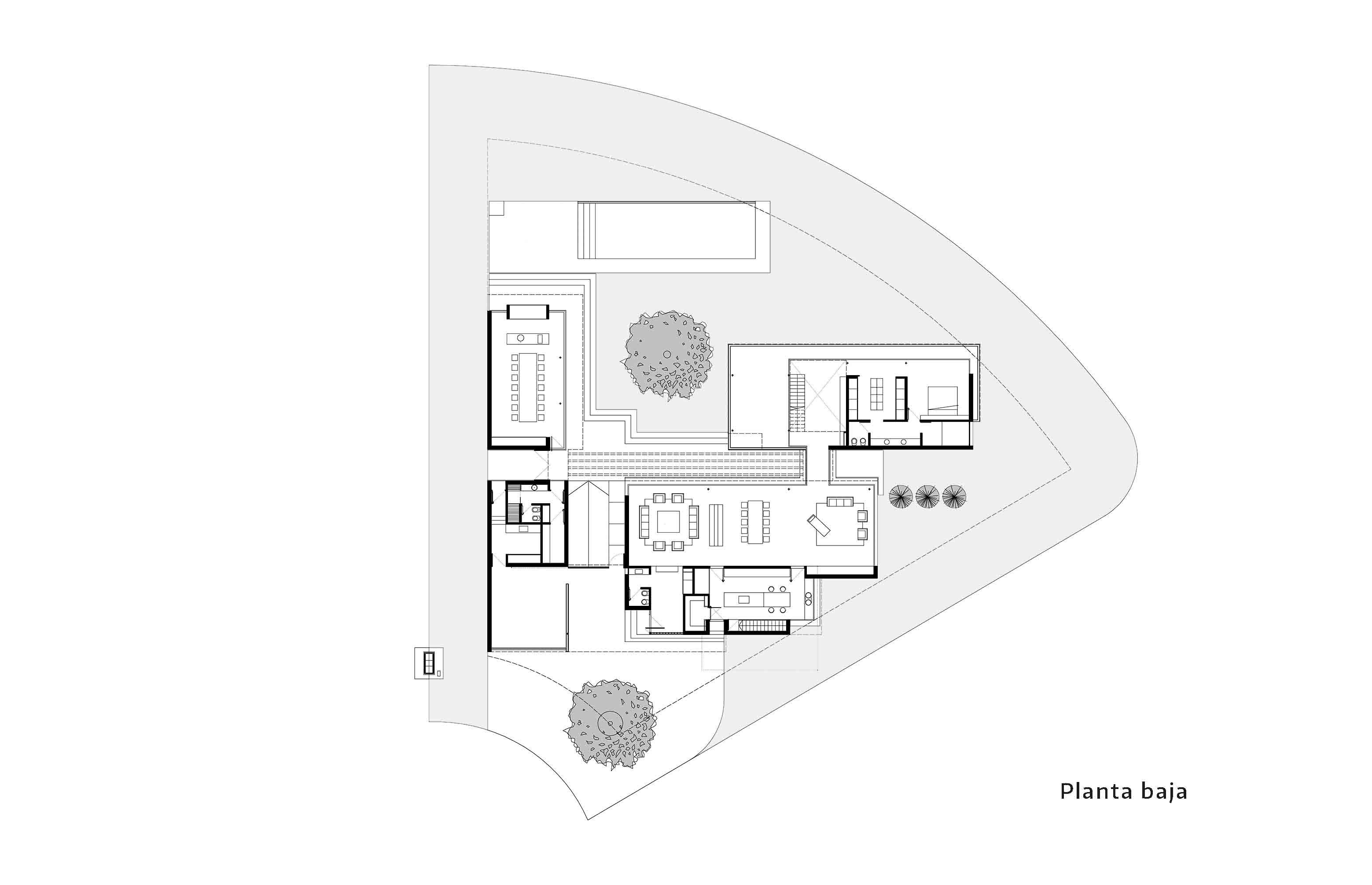
Así, la casa fue pensada como un conjunto de pabellones articulados por un espacio abierto central que posibilitó absorber la forma irregular del terreno y reforzar el vínculo con el paisaje natural a partir de reconocer las atractivas visuales heredadas de su ubicación privilegiada frente al campo de golf del club.
Los diferentes cuerpos pertenecientes al conjunto alojaron por separado las funciones principales, como ser, el estar-comedor, los dormitorios, los servicios y el salón asador; todos ellos abriéndose o cerrándose a la naturaleza de acuerdo a las distintas orientaciones e identificándose uno de otros por diferencias en alturas: ascendente hacia el ala de los dormitorios para organizarlos en dos niveles independizando el principal de los restantes, alcanzar mayor privacidad con el resto de la vivienda y reforzar la contemplación del entorno; y descendente hacia el cuerpo de los servicios para definir la transición de la calle con el interior del proyecto a través de la explanada del ingreso y el portal hacia el jardín que se funde con la escala colosal del paisaje natural .
Esta relación unívoca entre programa y lugar, quedó acentuada por el reduccionismo formal y la austeridad de la materialidad que sintetizaron la expresión arquitectónica de la obra bajo la impronta de la continuidad espacial por el uso del vidrio y un marcado sentido de permanencia por el empleo del hormigón armado.
En síntesis, el jardín central permitió interpretar la escala menor del proyecto al definir la relación intrínseca de las partes que componen el programa; mientras tanto, trabajar con el perímetro aislado posibilitó experimentar la escala mayor al moldear la volumetría para captar las visuales profundas y con ello atrapar la inmensidad del horizonte.