
.jpg)







VIVIENDA UNIFAMILIAR FH U51
PROYECTO: 2001
EJECUCION: 2001-2003
SUPERFICIE CUBIERTA: 183M2
UBICACIÓN: Funes Hill Barrio Privado, Funes, Santa fe, Argentina
PROYECTO: ARQ. ALEJANDRO BELTRAMONE, ARQ. MARCELO PONZELLINI
COORDINADOR DEL PROYECTO: ARQ. MARIANO LEGUIZAMON
COLABORADORES: F. Yaqüinto
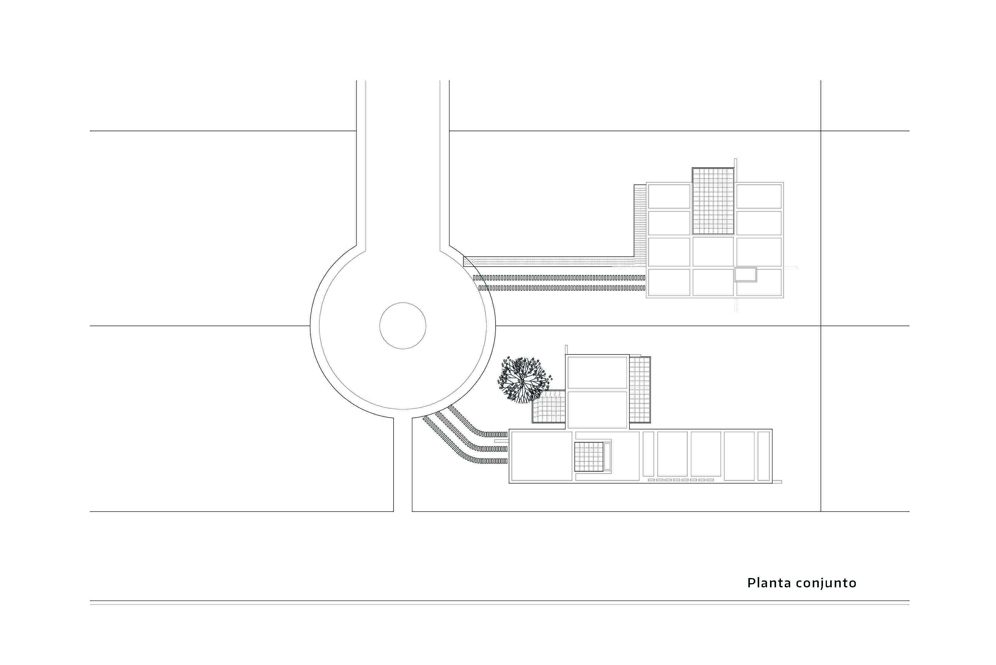
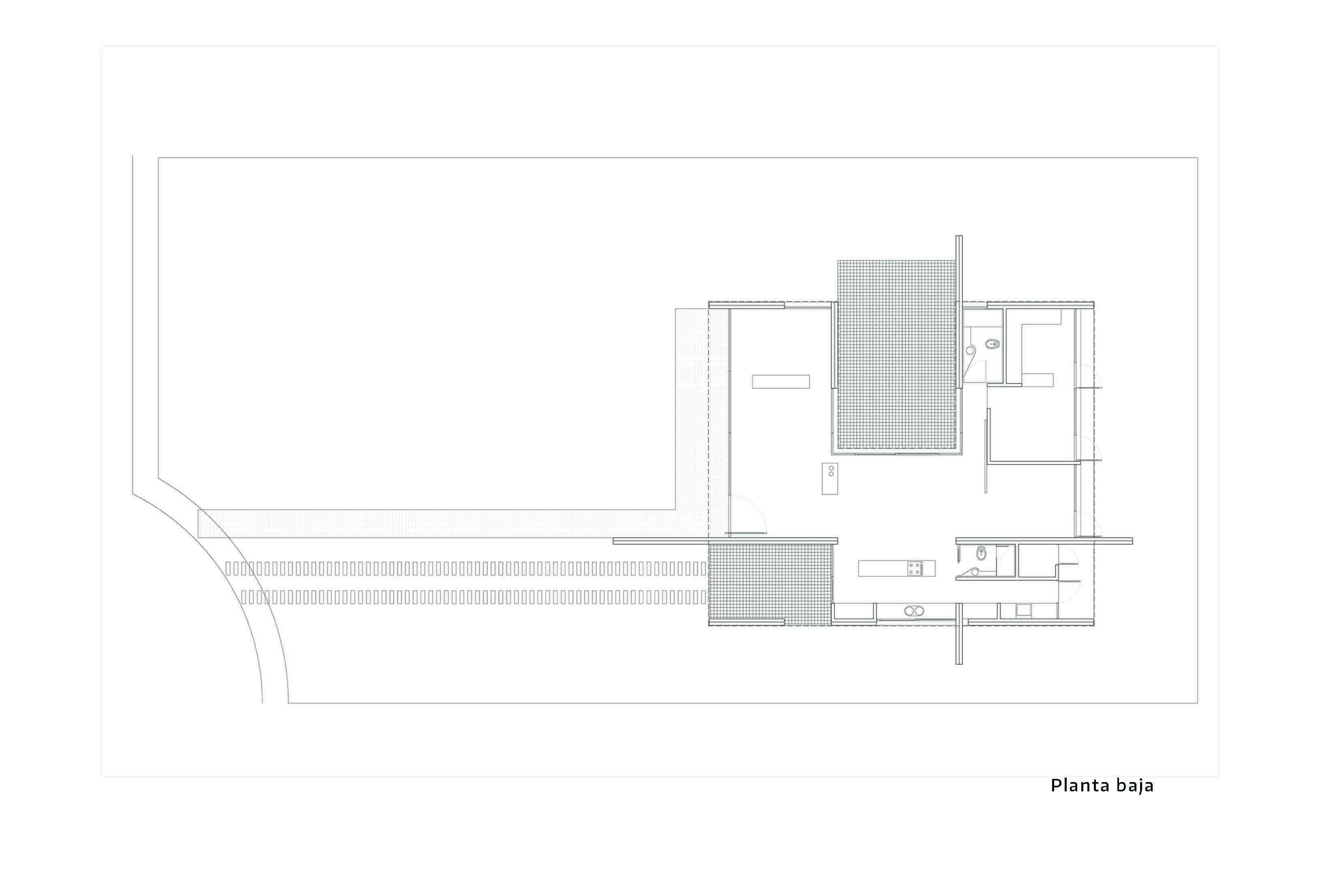
Memoria Funes Hill U51
El partido adoptado para el programa se basa en la generación de distintos espacios entorno a un “patio central” con la particularidad que los mismos plantean su relación con él y al mismo tiempo con la parquización de los diferentes espacios abiertos que rodean la vivienda. Con esta génesis se definen las orientaciones más convenientes para cada uso.
La arquitectura de los muros delinean trazos que insinúan este sistema de organización por “cuadrantes solares”.
El proyecto desde su primer momento plantea definir un aspecto social particular de estos barrios, el límite visual entre lo público y lo privado. Se genera así, el “patio seco” como espacio abierto recoleto y la parquización como nexo de la vivienda con su entorno inmediato.
El frente de ingreso es una “piel móvil”de madera que adopta posiciones variables en función de la instancia social deseada, definiendo una fachada dinámica, en permanente transformación coherente con la flexibilidad de la vida actual.
La envolvente exterior se completa con una “piel fija”: muros dobles de ladrillos que continúan en el interior desdibujando los límites reforzando la unidad del espacio entre arquitectura y naturaleza.