










CONCESIÓN DE OBRA PÚBLICA: BAR Y HELADERÍA EN BV. OROÑO Y AV. LÓPEZ
PROYECTO: 2008
EJECUCION: 2009
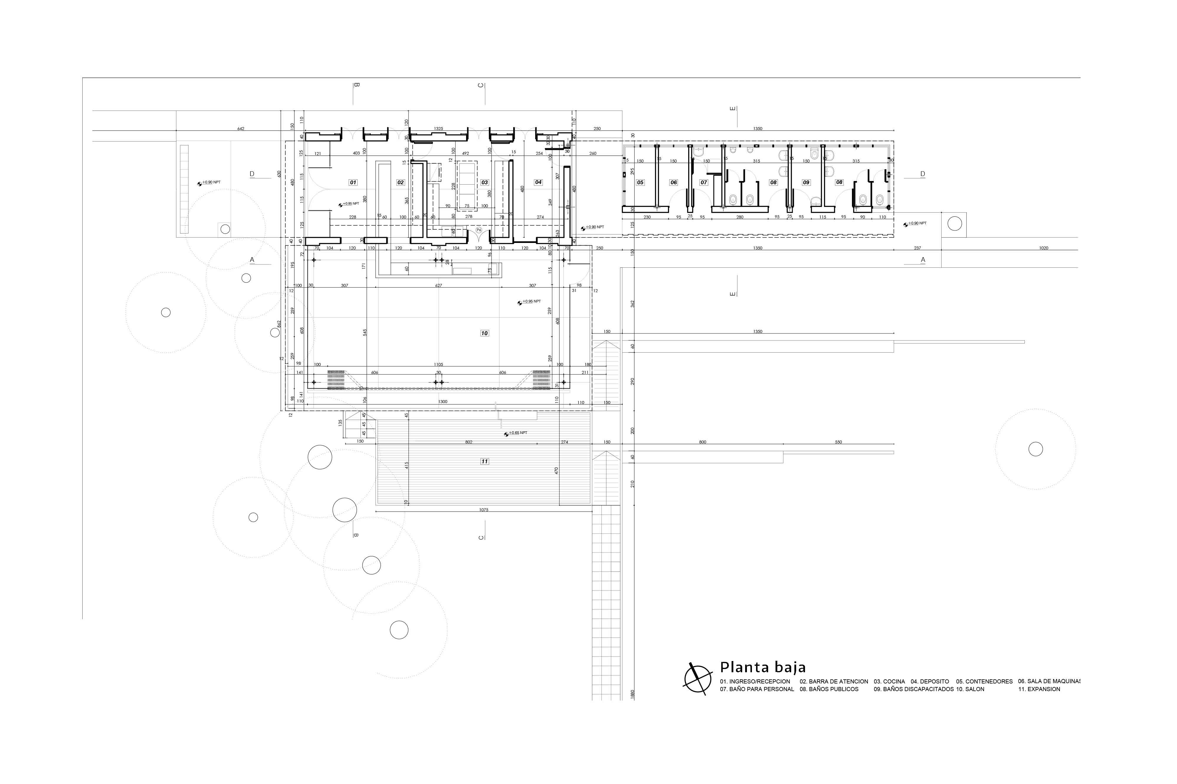
SUPERFICIE CUBIERTA: 325M2
UBICACIÓN: Bv. Oroño y Av. Lopez, Rosario, Santa fe, Argentina
PROYECTO: ARQ. ALEJANDRO BELTRAMONE, ARQ. MARCELO PONZELLINI
COORDINADOR DEL PROYECTO: ARQ. MARIANO LEGUIZAMON
COLABORADORES:
Memoria Descriptiva
La propuesta ha sido no sólo la de desarrollar una iniciativa para la construcción y explotación comercial de un bar y una heladería, sino de resolver un sitio urbano integrando el proyecto de arquitectura con el paisaje mediante el reconocimiento del potencial de su emplazamiento como parte del sistema costero de parques que la Municipalidad está consolidando año tras año; y a su vez por ser el remate de unos de los eje históricos de la ciudad: Bv. Oroño.
Para ello se han fijado los siguientes objetivos y criterios de intervención:
Alternativa de crecimiento:
Como posibilidad de crecimiento, a futuro se propuso agrandar la capacidad de mesas en un piso elevado cubierto sobre el área del pabellón existente.
Esto posibilitaría, aprovechar mejor las excepcionales visuales del entorno al incorporar las vistas al parque de las colectividades y el río Paraná; sin alterar por ello, la ocupación del suelo que mantendría la misma superficie de uso público que la destinada en el proyecto original.