












CONCURSO NACIONAL DE ANTEPROYECTOS NUEVA SEDE AFIP- ROSARIO
PROYECTO: 2008
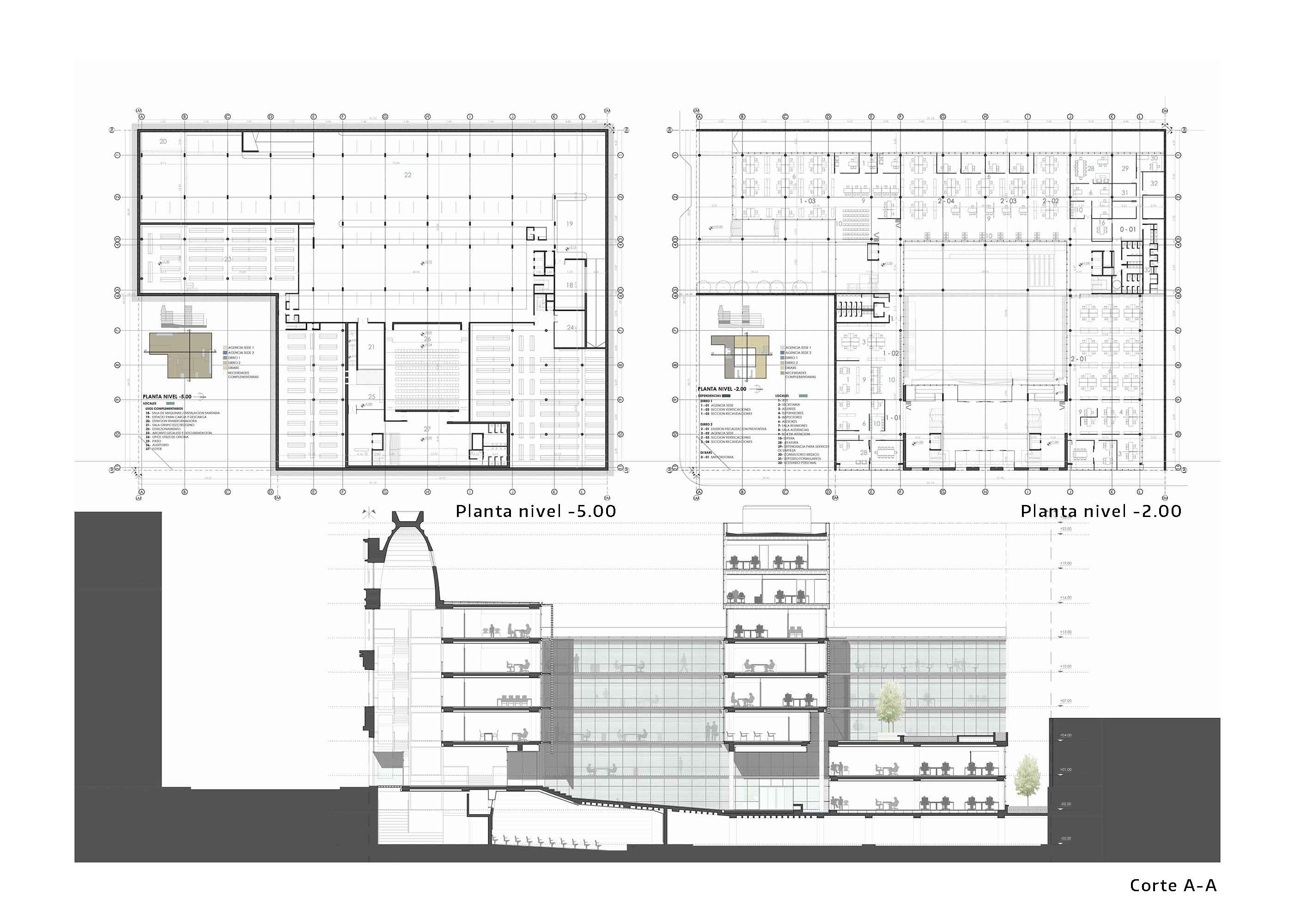
SUPERFICIE CUBIERTA: 16938M2
UBICACIÓN: Sarmiento 1348, Rosario, Santa fe, Argentina
PROYECTO: ARQ. ALEJANDRO BELTRAMONE, ARQ. MARCELO PONZELLINI
COORDINADOR DEL PROYECTO: ARQ. MARIANO LEGUIZAMON
COLABORADORES:
Memoria descriptiva
El proyecto para la Nueva Sede de la AFIP- Rosario tuvo como propósito generar un edificio que afiance su rol institucional mediante una marcada imagen de contemporaneidad articulada al valor patrimonial de la edificación existente; con claridad funcional en la estructura organizativa de su programa pero a la vez dinámico en su uso; y por último, respetuoso de su entorno con la voluntad de hacer ciudad a través de la Arquitectura.
Para ello, las primeras consideraciones se centraron en la relación Proyecto- Lugar con la incorporación sobre línea de edificación de la nueva masa edificada a la preexistente de valor patrimonial reforzando el consolidado frente urbano de calle Sarmiento y en contraposición un retranqueo a nivel de vereda de calle 9 de Julio donde el volumen edilicio totalmente a nuevo permitía mayor libertad en su relación con el espacio público.
La articulación de estos dos frentes urbanos se estableció por la estructuración en “L” de una sucesión de espacios abiertos, semicubiertos y cubiertos que conectan el exterior de la calle con el interior de la manzana, abriendo el lote al espacio público.
En esta composición el patio central adopta en planta el rol de ser el corazón del proyecto donde el programa se organiza en torno a él; en tanto en elevación, es el edificio preexistente el que sostiene su valor patrimonial al permanecer como volumen dominante ya que se deja liberado a la percepción todo el desarrollo de su mansarda como remate al no superarse la altura de 13 metros sobre las líneas de edificación con los nuevos cuerpos edilicios.
Con franca claridad organizativa se distribuyó en diferentes niveles cada una de las áreas funcionales de acuerdo al flujo de público según la cantidad de personas que asisten a cada una; otorgándole al edificio preexistente de valor patrimonial, un rol preponderante en el proyecto al vaciar su deteriorado interior para convertirlo con una nueva estructura en el hall principal de todo el conjunto. Por calle 9 de Julio, se concentró el otro acceso peatonal como puerta del segundo eje de circulación que vincula los demás nodos de conexión vertical: uno como hall de público en general y el otro recostado sobre la medianera norte de uso reservado para el personal.
El diseño de la estructura, permitió obtener la mayor flexibilidad de uso de la planta sujeta a permanentes modificaciones programáticas; y a su vez, consiguió independizar las áreas específicas de trabajo mediante controles de acceso a cada una de ellas a fin de dar respuesta a las diferentes demandas tanto en sus funciones, como en personal, horarios y tipo de atención al público.